
Hva kreves for å få dispensasjon fra byggeforbudet i strandsonen?
Innenfor 100-metersbeltet langs sjøen gjelder et generelt byggeforbud etter plan- og bygningsloven § 1-8. Det betyr at nye tiltak i utgangspunktet ikke er tillatt. Ønsker

Innenfor 100-metersbeltet langs sjøen gjelder et generelt byggeforbud etter plan- og bygningsloven § 1-8. Det betyr at nye tiltak i utgangspunktet ikke er tillatt. Ønsker

Kommunen kan gi dispensasjon dersom det foreligger «særlige grunner» og dersom fordelen ved å gi dispensasjon er klart større enn ulempene.

I Norge er det generelt byggeforbud i 100-metersbeltet langs sjøen. Det betyr ikke at det er umulig å bygge, men det krever særskilt vurdering for å få lov. Kommunen må se på både naturverdier, allmenn ferdsel og hvordan tiltaket påvirker omgivelsene.

Mange har spørsmål om byggesøknad, og det kan være vanskelig å finne svarene når man ikke kjenner regelverket. Her har vi samlet 10 vanlige spørsmål om byggesøknad, med korte og tydelige svar.

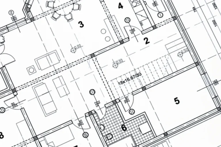
Har du planer om å bygge på huset, sette opp garasje eller kanskje bygge helt nytt? Da trenger du ikke bare gode ideer. Du trenger også tegninger som kommunen kan bruke til å behandle søknaden din.
Vi bruker informasjonskapsler for å forbedre brukeropplevelsen på nettstedet vårt og for personlig tilpasning av annonser. Ved å fortsette å bruke dette nettstedet samtykker du til vår bruk av informasjonskapsler. Avvis alle cookies
Vi bruker tjenester fra Google (f.eks. Analytics, Fonts og Site Kit) for å analysere trafikk og forbedre opplevelsen på nettsiden. Google kan dermed motta og behandle informasjon om ditt besøk. Du kan lese mer om hvordan Google håndterer personvern og data på sine tjenester her.
| Navn | Type | Varighet | Beskrivelse |
|---|---|---|---|
| cookienotice_cookie | Nødvendig | 1 måned | Lagrer brukerens samtykkevalg for cookies. |
| _ga | Statistikk (Google Analytics) | 2 år | Brukes for å skille brukere i Google Analytics. |
| _fbp | Markedsføring (Facebook) | 3 måneder | Brukes av Facebook til å levere annonsering. |
| _gat | Statistikk | 1 minutt | Begrenser forespørsler til Google Analytics. |
Du har rett til å be om innsyn i de personopplysningene vi behandler om deg og hvordan de behandles. Du kan også be om korreksjon, sletting og begrensninger i behandlingen av personopplysninger i henhold til personopplysningsloven.
Hvis du mener at vi ikke overholder dine rettigheter i henhold til personopplysningsloven, har du rett til å klage til Datatilsynet. Les mer om dine rettigheter hos Datatilsynet.